三通球閥有T型和L型。T型能使三條正交的管道相互聯通和切斷第三條通道,起分流、合流作用。L三通球閥型只能連接相互正交的兩條管道,不能同時保持第三條管道的相互連通,只起分配作用。
1、氣動三通球閥、三通球閥在結構上采用一體化結構,4面閥座的密封型式,法蘭聯接少,可靠性高,設計實現了輕量化
2、三通球閥使用壽命長,流通能力大,阻力小
3、三通球閥按作用式分單作用和雙作用兩種型式,單作用式的特點是一旦動力源發生故障時,球閥將處于控制系統要求的狀態
球閥和閘閥是同屬一個類型的閥門,區別在它的關閉件是個球體,球體繞閥體中心線作旋轉來達到開啟、關閉的一種閥門。 球閥在管路中主要用來做切斷、分配和改變介質的流動方向。球閥是被廣泛采用的一種新型閥門。
在線咨詢
購買熱線: 021-622-00727
1. 流體阻力小,其阻力系數與同長度的管段相等。
2. 結構簡單、體積小、重量輕。
3. 緊密可靠、密封性好,在真空系統中也已廣泛使用。
4. 操作方便,開閉迅速,從全開到全關只要旋轉90°,便于遠距離的控制。
5. 維修方便,球閥結構簡單,密封圈一般都是活動的,拆卸更換都比較方便。
6. 在全開或全閉時,球體和閥座的密封面與介質隔離,介質通過時,不會引起閥門密封面的侵蝕。
7. 適用范圍廣,通徑從小到幾毫米,大到幾米,從高真空至高壓力都可應用。
高平臺球閥按其通道位置可分為直通式,三通式和直角式。后兩種球閥用于分配介質與改變介質的流向。
1.要留有閥柄旋轉的位置。
2. 不能用作節流。
3帶傳動機構的球閥應直立安裝。
三通球閥的工作原理是靠旋轉閥戀來使閥門暢通或閉塞。球閥開關輕便,體積小,可以做成很大口徑,密封可靠,結構 簡單,維修方便,密封面與球面常在閉合狀態,不易被介質沖蝕,在各行業得到廣泛的應用。
三通球閥在管路中主要用來做切斷、分配和改變介質的流動方向。
三通球閥是一種比較新型的球閥類別,它有著自身結構所獨有的一些優越性,如開關無摩擦,密封不易磨損,啟閉力矩小。這樣可減小所配執行器的規格。配以多回轉電動執行機構,可實現對介質的調節和嚴密切斷。廣泛適用于石油、化工、城市給排水等要求嚴格切斷的工況。
近日,從青島水務集團環境公司了解到,島城~全地下式污水處理廠項目張村河水質凈化廠將開工建設,不但節省了土地資源,還解決了噪音污染等問題,日處理污水5萬噸。
同時,李村河污水處理廠三期擴建工程今年將全面建成,總處理規模將達到25萬噸/日,提升污水處理能力近50% ,李村河流域范圍內污水將實現全收集、全處理;麥島污水處理廠也將進行升級改造,日處理能力14萬噸/日。
針對污水處理過程中剩下的污泥,今年將推進樓山河污泥堆肥工程項目,設計規模300噸/日,污泥經過發酵后可產生化肥,可用于園林綠化等。
上海駱盈與青島~全地下式污水處理廠合作主要是在閥門領域,我公司將向該處理廠供應大型的三通球閥,這種產品是一種比較新型的球閥類別,它有著自身結構所獨有的一些優越性,如開關無摩擦,密封不易磨損,啟閉力矩小。這樣可減小所配執行器的規格。配以多回轉電動執行機構,可實現對介質的調節和嚴密切斷。
![]()

請點擊圖片看大圖
| 序號NO. | 部件Part | 材質Material | 數量QTY |
| 1 | 閥體Body | 不銹鋼316 | 1 |
| 2 | 密封副Cop | 不銹鋼316 | 3 |
| 3 | 球體Ball | 不銹鋼316 | 1 |
| 4 | 閥座Body Seat | 聚四氟乙烯 | 3 |
| 5 | 密封圈Body Seal | 聚四氟乙烯 | 3 |
| 6 | 閥桿座Stem Seat | 聚四氟乙烯 | 1 |
| 7 | 閥桿填料Stem Packing | 聚四氟乙烯 | 1 |
| 8 | 閥桿墊圈Stem Washer | 不銹鋼304 | 1 |
| 9 | 彈簧墊圈Spring Washer | 不銹鋼304 | 1 |
| 10 | 閥桿螺母Stem Nut | 不銹鋼304 | 1 |
| 11 | 閥桿Stem | 不銹鋼304 | 1 |
請點擊圖片看大圖
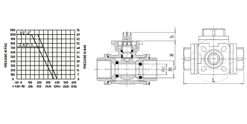
| 公稱通徑DN | G | L | B | A | H |
| 6 | 1/4〞 | 70 | 12 | 110 | 58 |
| 10 | 3/8〞 | 70 | 12 | 110 | 58 |
| 15 | 1/2〞 | 70 | 12 | 110 | 58 |
| 20 | 3/4〞 | 83 | 14 | 120 | 60 |
| 25 | 1〞 | 92 | 18 | 140 | 70 |
| 32 | 1-1/4〞 | 125 | 25 | 140 | 82 |
| 40 | 1-1/2〞 | 140 | 32 | 180 | 95 |
| 50 | 2〞 | 155 | 38 | 200 | 100 |
| 尺寸SIZE | φd | L | F | H | H1 | φB1 | φB2 | G | φA1 | φA2 | A | W | B |
| 1/2〞 | 11.0 | 79.0 | 39.5 | 42.0 | 70.0 | 42.0 | 36.0 | 9.0 | 6.0 | 6.0 | 9.0 | 135.0 | 27.0 |
| 3/4〞 | 15.0 | 88.0 | 44.0 | 49.0 | 77.0 | 50.0 | 36.0 | 9.0 | 6.0 | 7.0 | 9.0 | 135.0 | 34.0 |
| 1〞 | 20.0 | 108.0 | 54.0 | 59.0 | 87.0 | 50.0 | 42.0 | 11.0 | 6.0 | 7.0 | 11.0 | 170.0 | 41.0 |
| 1-1/4〞 | 25.0 | 124.0 | 62.0 | 63.0 | 93.0 | 70.0 | 42.0 | 11.0 | 11.0 | 9.0 | 11.0 | 170.0 | 50.0 |
| 1-1/2〞 | 32.0 | 133.0 | 67.0 | 73.5 | 103.0 | 70.0 | 50.0 | 14.0 | 7.0 | 9.0 | 14.0 | 200.0 | 56.0 |
| 2〞 | 40.0 | 164.0 | 82.0 | 82.8 | 113.0 | 70.0 | 50.0 | 14.0 | 7.0 | 9.0 | 14.0 | 200.0 | 70.0 |
專業制造、專業服務,駱盈為你創造更多價值 !
不斷提升服務質量,精益求精,“真誠的服務”是駱盈永恒的主題。駱盈嚴格按照 要求,質量嚴格把關,責任到人,確保生產、銷售、服務的健康運行。加強與用戶溝通,竭誠為廣大客戶提供優質產品,至善至美服務,特此駱盈做出如下承諾:
產品標準
產品嚴格按照中國 GB、HG 標準和美國 API 等標準設計、制造、驗收。密封面硬度達到規定要求,寬度超過標準。
售前服務
產品介紹,技術交流,非標產品設計,疑難解答。
售中服務
1、守信合同,保證及時供貨,隨時保持與客戶聯系
2、對特殊或復雜的產品,我廠安排技術人員對用戶進行產品使用、故障排除、調式及維修進行培訓和指導。
售后服務
1、駱盈產品質保期為自出廠起 12 個月,實行“三包”服務(包退、包換、包修)。
2、產品在使用中我廠定期組織技術、檢查人員進行訪問,征詢用戶對產品質量、使用狀況、改進意見等方面的反饋,以便進一步提高產品質量。
3、對用戶投訴產品質量問題,快速做出反映,售后服務人員在 24-36 小時(省外 48 小時)趕赴現場。
4、對售后服務,要求用戶填寫服務后的質量反饋表,并做出鑒定意見,共同提高駱盈的產品質量與服務質量。
1、客戶采購清單請傳真至 021-64207088 E-mail:luoying@luoyingsh.com,或來電咨詢 021-62212627。
2、收到客戶采購清單,為客戶提供產品型號選型與報價(價格清單)。
3、具體商定:交貨期、特殊要求等事宜。
訂貨須知
1、客戶對產品有特殊要求,須在訂貨合同中提供以下說明:
(1)結構長度
(2)連接形式
(3)公稱直徑、全通徑、縮徑、管道尺寸
(4)用介質及溫度、壓力范圍
(5)實驗、檢驗標準及其他要求本廠可根據客戶特殊要求配置定做和設計特殊產品。
2、本廠可根據客戶特殊要求配置定做和設計特殊產品。
3、如由客戶提供確定的產品類型和型號時,客戶應正確說明其型號的含義和要求,在供需雙方理解一致的條件下簽訂合同。
您也可以聯系在線客服